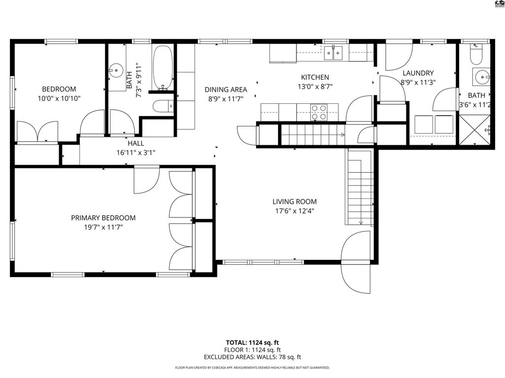
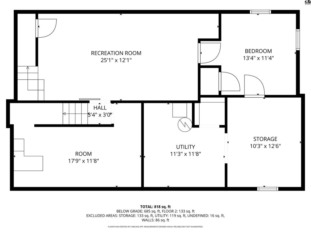
Beautiful two bedroom home with an inground gunite Chlorine pool is your new oasis on a large corner lot. This brick ranch home features two bedrooms, two bathrooms and a two car garage with a third rollup door for storage. The interior features calming neutrals, updated flooring and fresh paint. The built in dining cabinetry and a galley kitchen offer plenty of storage and the large laundry room is just off the kitchen. The owners bedroom is quite large as two rooms were previously opened to make a large bedroom and a full wall of closet space. Downstairs features a spacious family room, bonus room and a room with private stairwell access to another bonus room used as a salon. Sitting on nearly one-half acre of lawn, the pool and surrounding patio has plenty of green space to enjoy including mature trees. Seller Possession through January 31, 2026; open to delayed closing or a lease back option.
Date Added: 10/28/25 at 11:22 pm
Last Update: 12/11/25 at 6:53 pm
Interior
- GeneralSheetrock
- Master BathNone
- AppliancesWasher, Dishwasher, Disposal, Refrigerator, Cooktop, Gas Water Heater, Electric Oven, Window Coverings- SOME
- DiningKitchen/ Dining Combo
- LaundryMain Level
- BasementFull, Entrance- INTERIOR, Finished, Poured Concrete
- FlooringCarpet, Laminate
- A/CElectric
- HeatingNatural Gas
- FireplaceNone
Exterior
- GeneralUnderground Sprinkler- ALL, Guttering - ALL
- ParkingGarage Door Opener
- StyleRanch
- Other StructuresGreenhouse
Construction
- RoofingComposition
- GeneralBrick
Location
- Road/AccessPaved
- HOA AmenitiesJogging Path, Playground
- Originating MLSprairie
- School DistrictNickerson
- CountyReno
Lot
- FencingPrivacy, Other
- ZoningProvided by Security 1st Title Co
- TopographyPartially Wooded, Rolling
Utilities
- WaterWell
- SewerPublic Sewer
- UtilitiesSeparate Meters
Financial
- Sourceprairie
Schools
- DistrictNickerson Unified School District 309
- ElementaryNickerson
- MiddleReno Valley
- HighNickerson
















































Listings courtesy of Mid Kansas Multiple Listing Service Inc. as distributed by MLS GRID.